香港大埔火灾发生地,宏福苑风水户型分析
2025-11-27 19:15:06 作者:桃源居士 来源: 浏览次数:0 网友评论 0 条
桃源风水分析:
发生大火的香港大埔宏福苑,这两日牵动无数国人同胞的心。愿天
佑同胞,希望能够有更多生者生还。

接下来所做的玄学风水分析,是专业角度分析发生凶事之户型风水问题。
而并非蹭热度做任何炒作。
希望大家重视住宅风水的影响力。将来能够趋吉避凶,学习消防知识,并
能够避免选择有大风水问题的宅子居住。

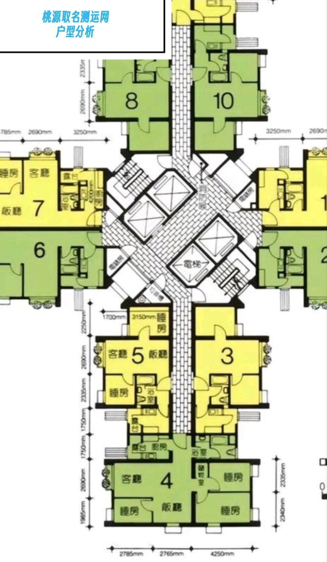
在风水上,找出发生大火的这几栋楼宇的外景,平面图查看,其实测名字
,宏福苑这三个字的笔画,乃是32画。总格局并不差,但今年乙巳年,本
是天干地支全属大火之年,这个名字又见草木,木被火烧,楼盘名,亦有
受克损之象。也在此地提示大家,明后年亦是连续的大火之年,大家一定
要小心防火,避火,避免此类惨烈的事件再次发生。

观其户型,找到其中主力户型,竟然有不少是漏斗户型,即前宽后窄,这
种入住其中,是久居不宜,不为吉宅之象,等于家里的福运,财运,事业
,健康,一朝一夕,容易全部漏出去。
特别敲黑板普及阳宅风水常识:漏斗户型的伤害力量,四个字:损财伤丁。
久住投资者需要注意财运损耗,以及健康运势下滑,或是家运突发危险的
事件。
同一栋楼,许多出现这样的户型对门对户都如此。反增地运户型凶
险。像居住这样的户型,务必要注意常去积累阴德,积善。布施,且做社
会公益,或常抄经,念佛,持灾,以避凶气干扰。因为同一栋楼,即使同
户型,也有一直行孝父母,积善修福的,自然能够避开其凶,但亦有不懂
修德,还在无形之中造作恶业的,则会损耗福报,牵连其中,被地运凶气
干扰,而造成意想不到的损耗。
外部的楼群右边出现大路,稍带反弓路。楼与楼之间,其实不能如此挨近
,因为每一栋楼中间,容易产生天斩煞气。增血光,意外,凶事之力量。
而其楼群大楼朝向形成十字架户型。最重要很老的楼宇,没有设计避难层
。一旦发生火灾,高楼逃生非常艰难。所以防火灭火的宣传,就是救命的
事情,需要每年继续普及。
希望各位楼盘设计师大人,在设计楼盘户型,一定多为人民考虑,多设计
吉祥风水户型。因为您的一笔下去,许多的百姓要居住几十年,买房亦不
容易。多些吉地选择,也是避免可能发动大型的灾难。我曾在二十几年中
,一直追踪实地风水户型。发现,地运对人的影响力,是非常巨大的。我
们都在人道之中,仍然要受地运地数影响。
也提醒大家,上苍有权降福,亦有权降祸。从来都是赏罚分明,故,一生
之中,无论在哪里生活,都需要思维,行事要多思是否合天心。遇见有人
遇见天灾,人祸,不可幸灾乐祸。要多多帮助灾民则能培福,每个家庭,
每个人,都是靠自身的福报在生活,务必要长久积累阴德,救济孤贫,以
己之力,发心利益社会,做种种的善业。多念佛,戒杀生,多存仁慈之心
,恢复人性的真与善,才是灾难中保全家人的平安真正护身符。
希望香港火灾中的所有人民,都能够转危为安,走出阴霾,永离灾难。自
在安乐。合十。
愿以此文功德回向给末学,历代祖先,冤亲债主,愿诸佛菩萨慈悲加持 业障减轻,离苦得乐。感恩诸佛菩萨慈悲加持。 忏悔三世身语意带来的恶业,愿我们国家国泰民安,愿一切众生离苦得
乐,向善念佛。感恩诸佛菩萨,龙天护法慈悲加持,以此功德,平等施
一切。同发菩提心,往生安乐国。南无阿弥陀佛。

已有





